AR560
Доступен для скачивания
краткий каталог продукции:
Электропривод AR560 устанавливается на шаровые краны AR560-2, AR560-2S, AR560-2M и AR560-3 с целью управления потоком рабочей среды в трубопроводе
Особенности:
- Для установки на краны:
– AR560-2, AR560-2M – двухходовые из латуни;
– AR560-2S – двухходовые из нерж. стали;
– AR560-3 – трехходовые из латуни - Схема управления с переключателем. В качестве переключателя К можно использовать переключатели на 3 положения SD16-V-22IR, SD16-V-22R3S, SD16-V-22K, AR-XB2-BD, AR-XB2-BJ, AR-LA800E-BLSM
- Пыле- и влагозащищенный корпус IP67 (выдерживает кратковременное погружение на глубину до 1 м)
- Простота монтажа
- Долгий срок службы
Технические характеристики:
| Параметр | Значение |
| Время открытия/закрытия | 11...15 с |
| Угол поворота | 90° (вращение в обоих направлениях) |
| Крутящий момент | 8 Н∙м |
| Степень пылевлагозащиты | IP67 |
| Питание, ток, мощность | ~220 В, 50 мА, 11 ВA
=24 В, 100 мА, 2,4 Вт |
| Схема подключения | 3-проводная с переключением |
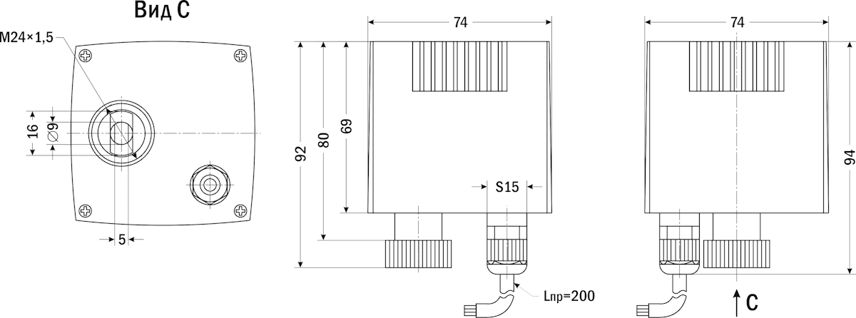
| Присоединение привода к крану | М24×1,5 |
| Длина кабеля | 200 мм |
| Габаритные размеры | 92×74×74 мм |
| Вес | 350 г |
| Габаритные размеры |
|
Версия: 2024-04-23-ШАР
| Документ | Дата обновления |
| Паспорт на AR560 | 05.03.2025 |
